• de villa in oude glorie
  • huidige toestand villa
  • nog oorspronkelijke poort
  • Prinses Marianne was de prominente eigenaar ooit
  • 3D opmeting bestaande toestand
  • 3D opmeting bestaande toestand
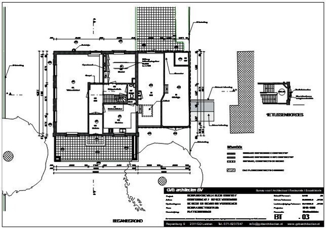
  • opmeting bestaande toestand
  • opmeting bestaande toestand
  • opmeting bestaande toestand
  • project in uitvoering

restauratie Villa Klein Rusthof Voorburg

restauratieplan van een bijzonder monument met een koninklijk tintje

De villa Klein Rusthof, een gemeentelijk monument, oogt in eerste instantie niet als een heel bijzonder pand. Dit mede door veroorzaakt door achterstallig onderhoud, ingrijpende verbouwingen en het verlies van veel historische details. Dat het pand toch bij veel historici in de belangstelling staat heeft te maken met het feit dat de villa ooit heeft toebehoord aan iemand van de koninklijke familie; prinses Marianne, dochter van koning Willem I, zuster van koning Willem II. De prinses was een eigengereid persoon en heeft zich tijdens haar leven ontpopt tot het zwarte schaap van de koninklijke familie. De villa, oorspronkelijk Janetta genaamd, is gebouwd in 1874 op een perceel dat oorspronkelijk in gebruik was als moestuin behorend bij de oude buitenplaats Noordervliet. Het is aangekocht als verblijf voor de zoon van Marianne, prins Albert. Deze vond de villa echter te klein waarna het huis bestemd werd als woonverblijf voor personeel.
De nieuwe eigenaren hebben het voornemen om een alles omvattend restauratieplan op te stellen waarbij het monument weer in oude luister kan worden hersteld.
Ons bureau verzorgt de opmeting van de bestaande toestand, bouwhistorisch onderzoek, opstellen restauratieplan, verzorgen vergunningsaanvragen, begeleiding aanbesteding en uitvoering.