• bestaande toestand
  • bestaande toestand
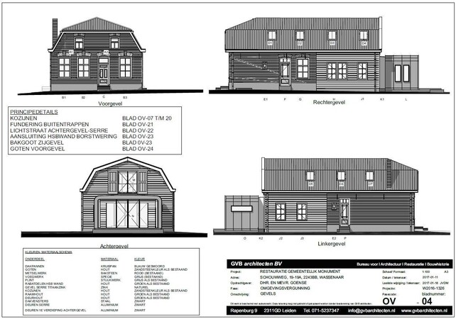
  • tekening gevels bestaande toestand
  • tekening gevels nieuwe toestand
  • bestaande toestand
  • bestaande toestand; voorkamer
  • bestaande toestand; oude bedstedewand
  • bestaande toestand; andere tijden!

SCHOUWWEG 19-19a WASSENAAR

restauratieplan gemeentelijk monument bestaand uit een woonhuis met aangebouwde bollenschuur