• na restauratie
  • oude toestand overzicht complex
  • oude toestand straatgevel
  • oude gevelsteen voor restauratie
  • oude toestand zijgevel
  • oude toestand achtergevel
  • oude toestand bollenstellingen
  • oude toestand binnen
  • Oude foto genomen kort na de bouw in 1902
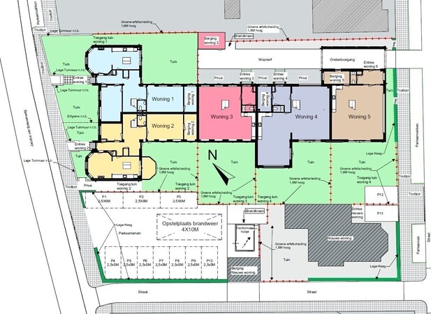
  • overzicht plan verkaveling 5 woningen
  • impressie plan fase ontwerp
  • impressie plan fase ontwerp
  • impressie plan fase ontwerp
  • na restauratie
  • na restauratie
  • na restauratie
  • na restauratie
  • na restauratie
  • na restauratie
  • na restauratie
  • na restauratie
  • na restauratie

colijn voorhout

restauratie en transformatie van rijksmonumentale bollenschuur

Het rijksmonumentale complex Jacoba van Beierenweg 75-77-79 (voormalige Firma Colijn & Zonen) bestaat uit een langgerekte bollenschuur, aan de voorzijde aan beide zijden geflankeerd door een voormalige bedrijfswoning. De linker woning nr.77 was oorspronkelijk bedoeld voor de directeur-eigenaar en de rechter woning nr.75 voor personeel. Het plan tot herontwikkeling van het complex bestaat uit 5 grondgebonden woningen.
Onze bureau verzorgd voor dit project de opmeting van de bestaande toestand, bouwhistorisch onderzoek, opstelling restauratieplan, verzorgen vergunningsaanvragen, werkvoorbereiding en al het daarbij behorende tekenwerk.