• het industriële monument
  • zicht vanaf straatzijde
  • zicht vanuit het aangrenzende park
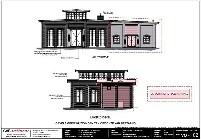
  • achterzijde; het pand bestaat uit 2 gedeelten
  • gevels blijven ongewijzigd
  • gevels blijven ongewijzigd
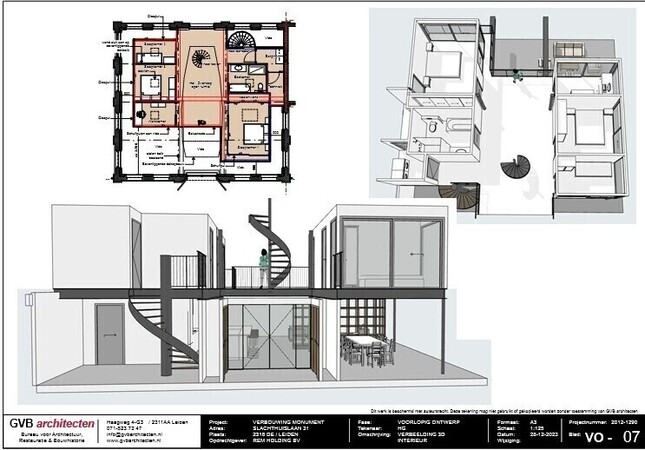
  • vrijstaand inbouwpakket los van oude casco
  • vrijstaand inbouwpakket los van oude casco
  • vrijstaand inbouwpakket los van oude casco

transformatie industrieel monument

een nieuw en modern inbouwpakket voor de realisatie een woning in een industrieel monument

Dit project betreft een monumentaal pand in Leiden dat ons bureau al sinds 2012 begeleidt met verbouwingen. Een korte geschiedenis; in 2012 is het pand aangekocht en in gebruik genomen als restaurant waarvoor ons bureau een verbouwingsplan heeft getekend en gerealiseerd. Na verkoop van het pand in 2021 hebben wij voor de nieuwe eigenaar een verbouwing getekend waarbij het pand gesplitst is in een zelfstandige woning en een zelfstandig kantoor. Die verbouwing is inmiddels gerealiseerd. Op dit moment zijn wij in overleg met de gemeente om het kantoordeel ook te kunnen verbouwen tot een zelfstandige woning. Daartoe hebben wij een modern vrijstaand inbouwpakket getekend dat zich geluisloos laat inpassen in het oude casco.