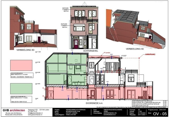
• Rapenburg 9
  • Rapenburg 9
  • balkenplafond 17e eeuw
  • spiltrap 17e eeuw
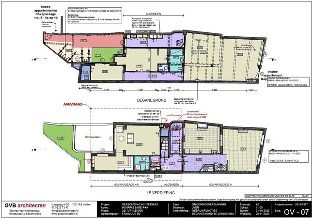
  • tekening vergunning plan
  • tekening vergunning plan
  • tekening vergunning plan

herontwikkeling en verduurzaming rijksmonument

in voorbereiding: aan de mooiste gracht van Leiden ligt dit pand dat compleet wordt verduurzaamd en ontwikkeld wordt tot 4 fraaie appartementen.

Het pand is een rijksmonument en bestaat uit een voorhuis en achterhuis gescheiden door een overdekte oude binnenplaats. Aan de achterzijde is het pand ontsloten via de Novapassage. De bouwhistorie gaat terug tot de 17e eeuw en wellicht ouder. In een groot gedeelte van de 20 eeuw heeft het pand gefunctioneerd als apotheek met bovengelegen woning. Nadien is het pand in gebruik genomen als kantoorruimte. De nieuwe eigenaren hebben het pand aangekocht om te ontwikkelen tot appartementen. Vergunningen zijn inmiddels verstrekt en we zijn in afwachting van de uitvoering door een aan te besteden bouwbedrijf.

Ons bureau heeft de volgende werkzaamheden verricht voor dit project; opmeting pand, tekenwerk bestaande toestand, quickscan bouwhistorie, ontwerp en tekenwerk nieuwe toestand, verzorgen van de noodzakelijke vergunningen.