• oude toestand voorgevel
  • in uitvoering
  • in uitvoering
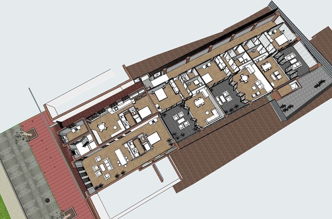
  • plan restauratie / herontwikkeling
  • plan restauratie / herontwikkeling
  • plan restauratie / herontwikkeling
  • plan restauratie / herontwikkeling
  • plan restauratie / herontwikkeling
  • oude toestand oude bedrijfsgedeelte
  • oude toestand oude bedrijfsgedeelte
  • oude toestand bedrijfswoning
  • oude toestand bedrijfswoning
  • oude toestand bedrijfswoning
  • oude toestand bedrijfsgedeelte
  • oude toestand oude bedrijfsgedeelte

herontwikkeling monument naar appartementen

Na een lange voorbereiding is dit bouwplan opgeleverd waarbij 8 zelfstandige apppartementen zijn gerealiseerd. Dit met zoveel mogelijk behoud van het karakteristieke monument.

Het pand is in 1897 gebouwd na kadastrale splitsing van een groter perceel en de sloop van bestaande oudere bebouwing op die locatie. Het pand bestond functioneel uit een bedrijfsruimte met paardenstal op de beganegrond en een dienstwoning voor de zogeheten stalbaas op de verdieping. Als gevolg van veranderende marktomstandigheden in het vervoer, wisseling van eigenaar en verdere verdringing van het gebruik van paarden door het sterk ontwikkelende gemotoriseerde verkeer werd het oude pand in 1932 uitgebreid met de huidige grote garage / werkplaats aan de achterzijde. Dat deze uitbreiding uit 1932 zich nog in tamelijk oorspronkelijke toestand bevond mag bijzonder heten. In 1975 heeft Van Gend & Loos het pand verkocht waarna het tot 2021 in handen is geweest van een enkele particuliere eigenaar. Deze eigenaar heeft de bedrijfsfunctie van de beganegrond laten bestaan en heeft een tijd lang een handel gevoerd in reparatie en verkoop van 2e hands fietsen. Na opheffing van de fietsenzaak heeft de oude garage / werkplaats lange tijd gediend als klus- en hobbyruimte. De laatste jaren liep ook dat gebruik ten einde. Het achterstallige onderhoud van het complex bleef zich echter opstapelen en noodzaakte tot verkoop.

Ons bureau heeft de volgende werkzaamheden verricht voor dit project; opmeting complex, tekenwerk bestaande toestand, bouwhistorisch onderzoek, ontwerp en tekenwerk nieuwe toestand, verzorgen noodzakelijke vergunningen, begeleiding uitvoering op afroep.