• plan restauratie
  • plan restauratie
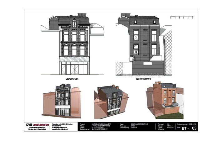
  • opmeting bestaande toestand

restauratie en reconstructie winkelpand leiden

in voorbereiding: een plan waarbij het de wens is om appartementen boven een winkel te realiseren. Daarbij de ambitie om de lelijke bestaande winkelpui te vervangen door de historische winkelpui daterend uit de bouwtijd van het pand.